Informații și comenzi: 0371-780.800 | office@masiniunelte.ro

Transpalet foarfeca manual Unicraft PHH 1001

Transpaletul foarfeca manual Unicraft PHH 1001 este ideal pentru utilizarea in depozitele de marfa, acest transpalet asigurand transportul sarcinilor pana la 1000 kg si ridicarea acestora pana la o inaltime de 800 mm.

Read moreShow less
908,00 € (fara TVA)
Reference:
UC.6150100
Adaugă la comparație0
Descriere
  • Acest model combinat de transpalet poate fi utilizat atat ca transpalet standard in camioane, precum si ca masa de ridicare (masa cu lift)
  • Aceasta lisa / platforma mobila este dotata cu dispozitiv hidraulic de ridicare la inaltime cu capacitate de 1 tona
  • Pompa hidraulica are o functionare fara trepidatii fiind prevazuta cu piston cromat si supapa de siguranta
  • Pistonul de ridicare supradimensiont asigura exploatarea eficienta a acestui transpalet in conditii grele de lucru
  • Viteza de ridicare este ajustabila continuu prin intermediul unei valve de siguranta cu sensibilitate ridicata
  • In timpul coboririi si urcarii platforma mobila este sustinuta de prorpiul sistem de blocare, sistem ce previne deplasarea accidentala
  • Acest transpalet foarfeca este prevazut cu dispozitiv mecanic pentru ridicarea furcilor, fara trepidatii, pana la 800 mm in inaltime
  • Rola conducatoare este confectionata din aluminiu si este prevazuta cu suprafata de contact din cauciuc poliuretanic extrem de rezistent
  • Manerul ergonomic cu care este prevazut transpaletul garanteaza operarea simpla si confortabila
  • Acest transpalet are o constructie solida, furcile fiind realizate din otel de calitate
 

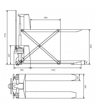
CARACTERISTICI TEHNICE

Date tehnice pentru transpaleti
Capacitate 1000 kg
Lungime furci 1150 mm
Latime furca 160 mm
Latime totala furci 540 mm
Inaltime ridicare minima furci 85 mm
Inaltime ridicare maxima furci 800 mm
Unghi de intoarcere 210°
Dimensiuni roata conducatoare (diametru x grosime) Ø 180 x 50 mm
Dimensiuni roti spate (diametru x grosime) Ø 74 x 50 mm
Dimensiuni (L x l x h) 1515 x 1225 x 540 mm
Greutate aproximativa 122 kg
Read moreShow less
Detalii ale produsului
UC.6150100

Menu

Suna-ne